Gallery

IDLC HEAD OFFICE

26 Storied With 5 Basements

On December, 2019 Through A Competitive Design Selection Process Form.3 Architects Has Been Awarded As The Designated Consultant Of Idlc Head Office To Be Built In Tejgaon Industrial Area.

Site Location: Tejgaon Industrial Area

Land Area: 20.2 Katha

Client : Idlc Finance Plc.

Structure Cnsultant : SB Consultant Ltd.

MEP Consultant : Shams Engineering

Photography : City Syntax

Construction Year : 2023 (Ongoing)

THE SIMPLEST ANSWER TO THE COMPLEX FUNCTIONS FOR THE LEADING ORGANIZATION

In search for an appropriate response constituting the stature, the simplest answer to the complex functions for the leading organization was the vision, representing growth and economic confidence. Timelessness in its design resembling stability and creating an ICON with single line hence touch of simplicity yet striking boldness. During inception of the building, the design generated from strategically responding to the climatic conditions eventually encapsulating qualities that are found in a LEED platinum building.

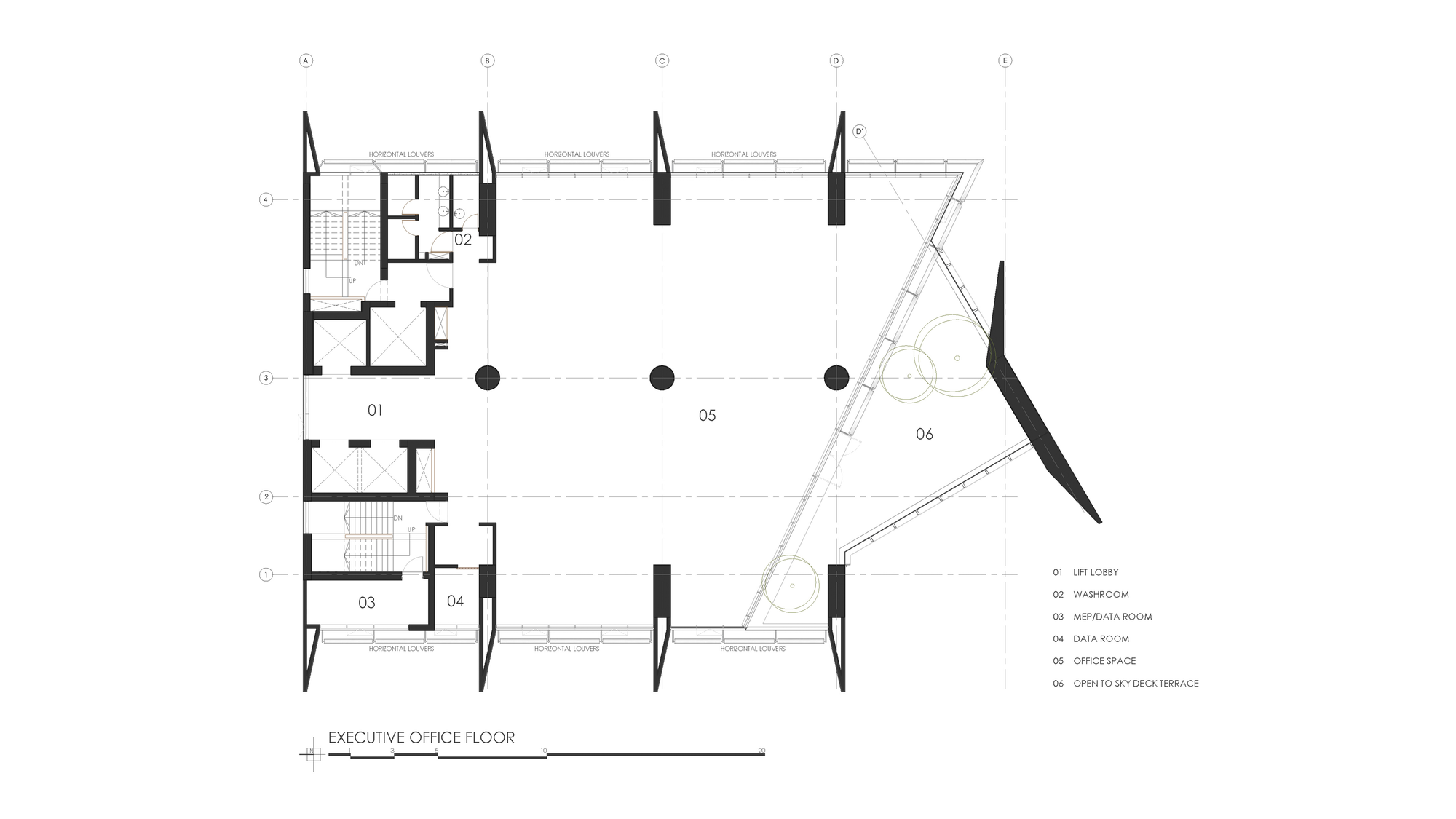
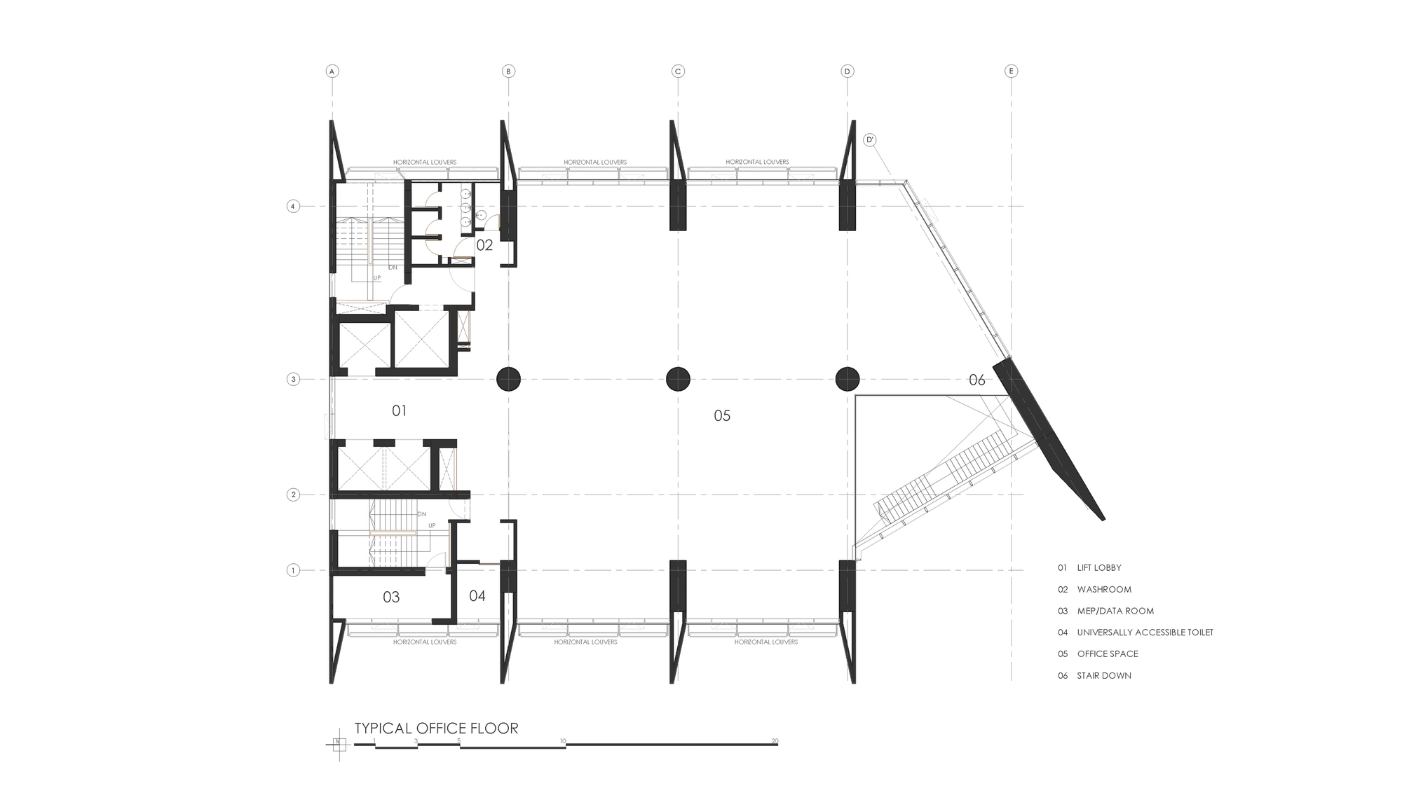
Housing multiple commercial functions, office spaces with their reciprocatory utilities and recreational soirees, it all comes under one roof, serving the IDLC family.

The interior space of the building is envisioned with clean and connected open floor accommodating the core at north of the site ensuring abundant flow of natural light through the spaces.

Our response was to create a connected vertical campus — a tower that operates like a living, layered community, rather than a closed corporate monolith. The design emphasizes climatic responsiveness, ensuring comfort and efficiency while expressing an architecture rooted in its context. Beyond its role as a workplace, the building is envisioned as an object of craft, carefully articulated in form, material, and detail to generate meaningful experiences.

At the upper tiers, the tower evolves beyond the workplace into a social and cultural horizon in the sky. Here, dining halls, prayer spaces, a gymnasium, swimming pool, and multipurpose venues are strategically placed to command sweeping views of the city and Hatirjheel. These amenities are not just recreational add-ons; they are integral to the idea of a connected vertical campus. By elevating spaces of gathering, reflection, and wellness to the skyline, the building fosters a shared social atmosphere above the city, where community and culture thrive alongside function. The result is a headquarters that transcends the image of a corporate icon — it becomes a symbol of openness, vitality, and urban connection.

Among the layered programs of the vertical campus, a pivotal element is the gallery seating space that bridges two levels of the tower. Positioned to capture panoramic views of Hatirjheel and the Dhaka skyline, this space dissolves the boundary between work and leisure.

weaving in a gallery space that can serve formal functions like training sessions, presentations etc. to informal functions like gossiping and gathering , while visually opening to Hatirjheel and the skyline, anchors the project in Dhaka’s urban identity. It’s more than just a “facility” — it’s a social condenser within the vertical campus.

The design incorporates interconnected internal stairs and terraces, weaving together the building’s various floors into a cohesive vertical campus. These elements go beyond mere functional circulation: they create opportunities for chance encounters, informal gatherings and shared experiences, blurring the line between work, social interaction, and leisure.

At the scale of the city and the urban environment, design extends far beyond functionality; it becomes an orchestrated experience that gradually unfolds into deeply personal encounters. The choice of building materials plays a pivotal role in shaping this experience. Rather than relying solely on engineered precision or performance-driven solutions, the emphasis is placed on materials as crafted entities—expressions of human touch, care, and artistry.

This approach privileges the human scale, where atmospheres are carefully shaped to resonate with embodied perception and lived experience. Details are not merely functional but tactile, grounding users in spaces that feel warm, approachable, and personal. Materials such as wood, crafted with care, or earth-toned concrete that carries the weight of both permanence and artistry, exemplify this ethos. They become more than structural elements; they are vessels of memory, intimacy, and atmosphere.

Architecture transcends the technical realm of construction to embody craft and materiality at its very core. Each surface, each detail, and each junction communicates a narrative of making—rooted in human experience, attentive to scale, and committed to shaping environments that are not only inhabited but also felt.