Gallery

NAVANA STRAND

A COMMERCIAL BUILDING AT GULSHAN AVENUE


The project responds to its scenic site by embracing openness and harmonious relationship with the public realm. Stacked volumes form terraces and sky gardens that frame views toward the park, while screens provide privacy without enclosing the building. Warm materials, greenery, and thoughtful spatial layering transform the structure into a breathable commercial space with natural serenity.

Site Location : 179 North Gulshan Avenue, Dhaka
Land Area : 1003.72 sqm

Client : NAVANA REAL ESTATE ltd.

Structural Consultant : CIVIC Solution

Construction year : On-going

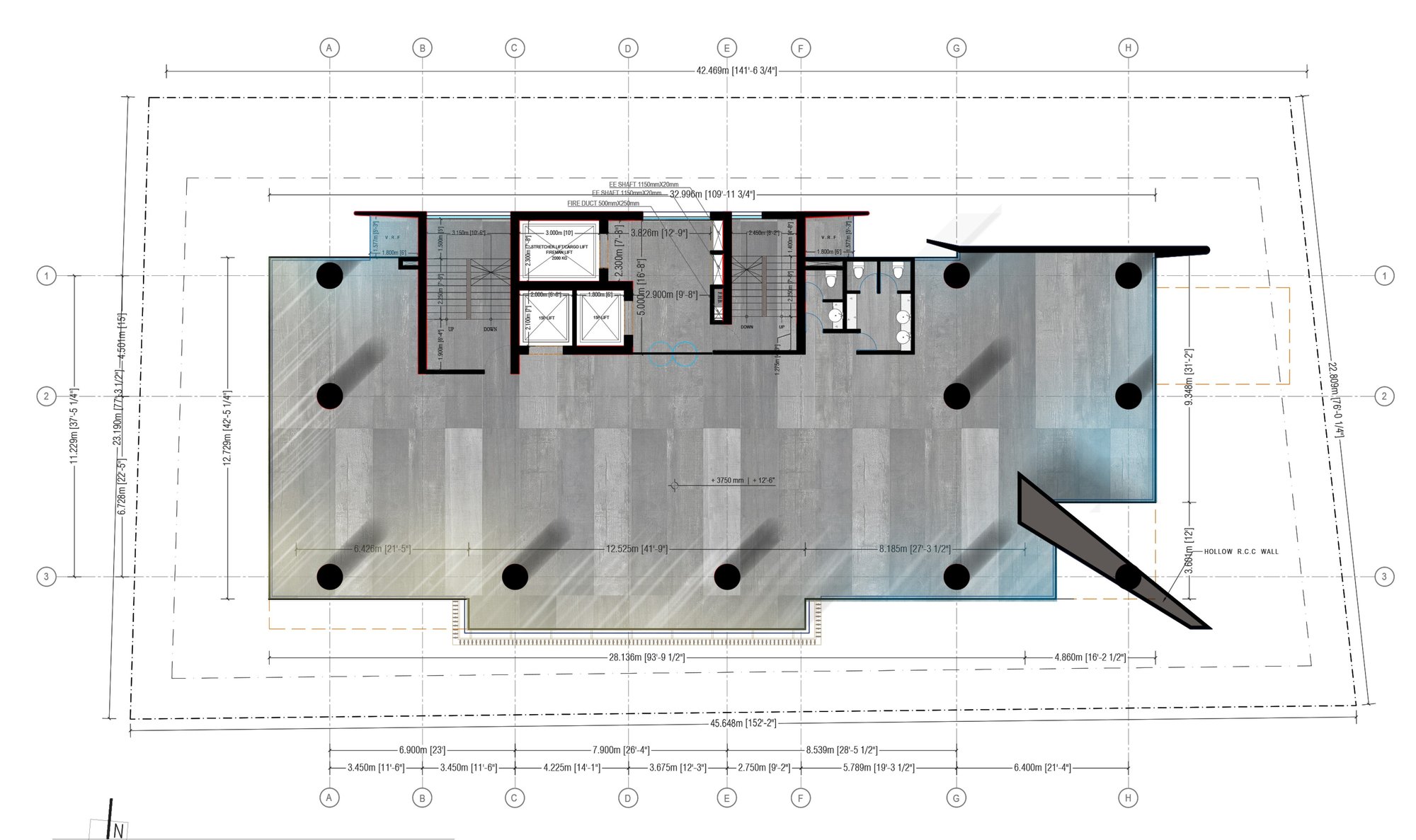
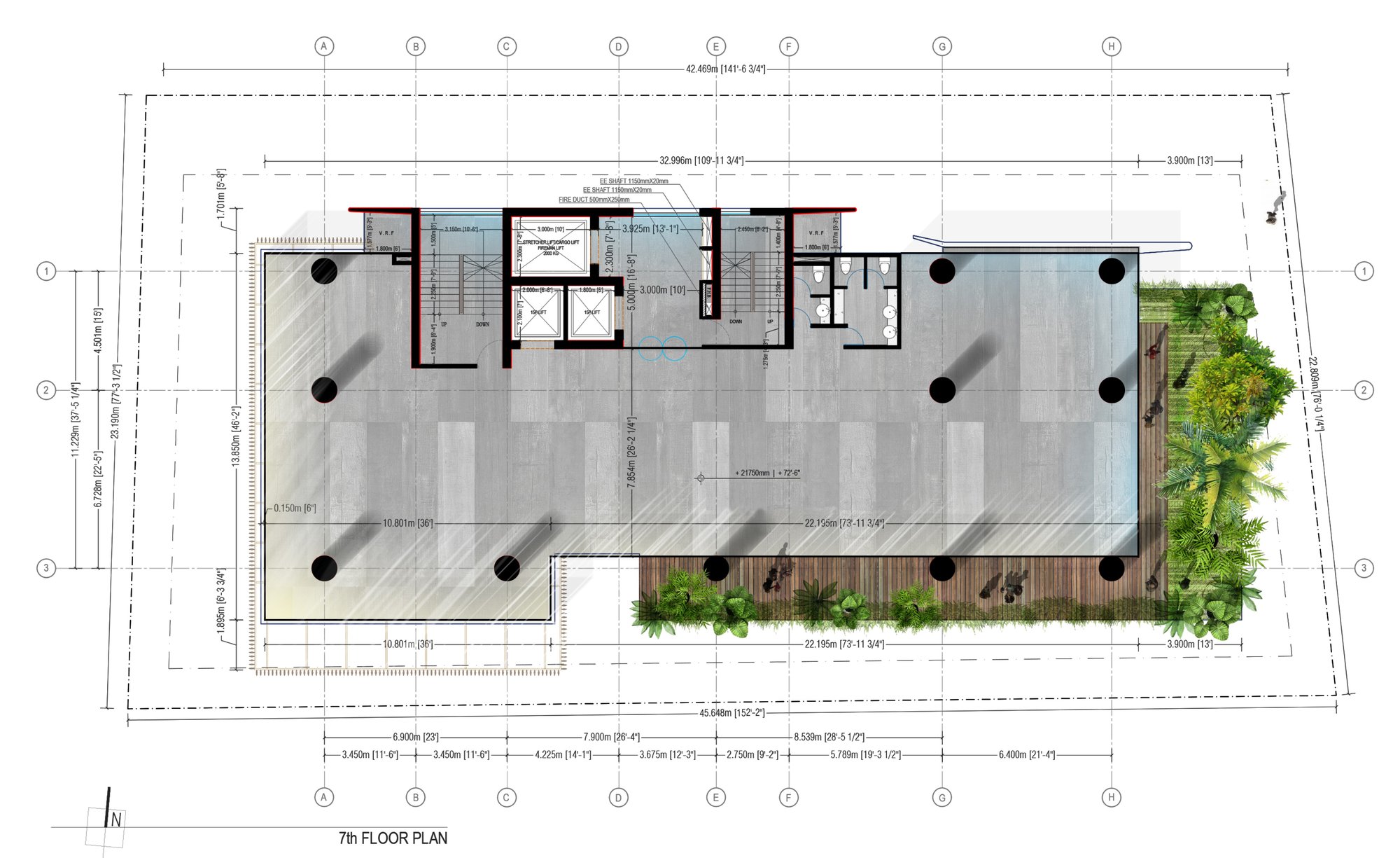
The design is composed of stacked and shifted volumes that generate terraces and sky gardens — creating a dialogue between built form and landscape. These elevated green layers not only provide a sense of openness but also frame views toward the park and the city beyond, enhancing the connection between architecture and nature.

A network of vertical and horizontal screens wraps the façade, offering privacy while allowing light and air to permeate. Acting as both climatic and visual filters, the screens control glare, soften sunlight, and introduce a dynamic rhythm that shifts throughout the day.

The project is envisioned as an architectural response that celebrates its scenic surroundings and unique site condition. Positioned on a corner plot open on three sides, the building embraces the natural openness and visual expanse, with a vast park stretching along its southern edge.

The project redefines vertical living, transforming the building into a layered, breathable landscape that celebrates openness, privacy, and the serenity of its park-side setting. Materiality plays a central role in shaping the building’s character. Warm tones, natural textures, and integrated greenery foster contextual harmony and a human scale, while balancing transparency and enclosure, solidity and void.

The building’s functional core is deliberately positioned to one side, freeing the remaining three façades to engage with expansive views and natural light. At the ground level, the mass is carefully carved at the corner, creating a spatial openness that celebrates the site’s prominent corner location along the road.

This architectural move not only emphasizes the building’s visual permeability but also establishes a harmonious dialogue with the public realm, fostering a sense of invitation and connectivity. The interplay of solid and void articulates the building’s presence while respecting the surrounding urban context.

The building avoids creating a high boundary along the public footpath, fostering harmony and a visually open relationship with the public realm.

Elevated green gardens along footpaths enhance urban livability by improving air quality, moderating microclimates, and offering visual and experiential relief for pedestrians.