Gallery

PREMIUM RESIDENTIAL CONDOMINIUM

At Bashundhara Residential area.

This Condominium is designed for JCX Developments Ltd. Project named ‘JCX Grand Residences’ is a multi-storeyed residential building that rethinks conventional housing design for urban living. The project attempts to create a vibrant life style for its users through sustainable design ideas.

Site Location : Block – I EXT. Bashundhara R/A, Bangladesh

Land Area: 6153.90 sqm

Built Area: 53000 sqm

Client: JCX Developments Ltd.

Project Status: On Going

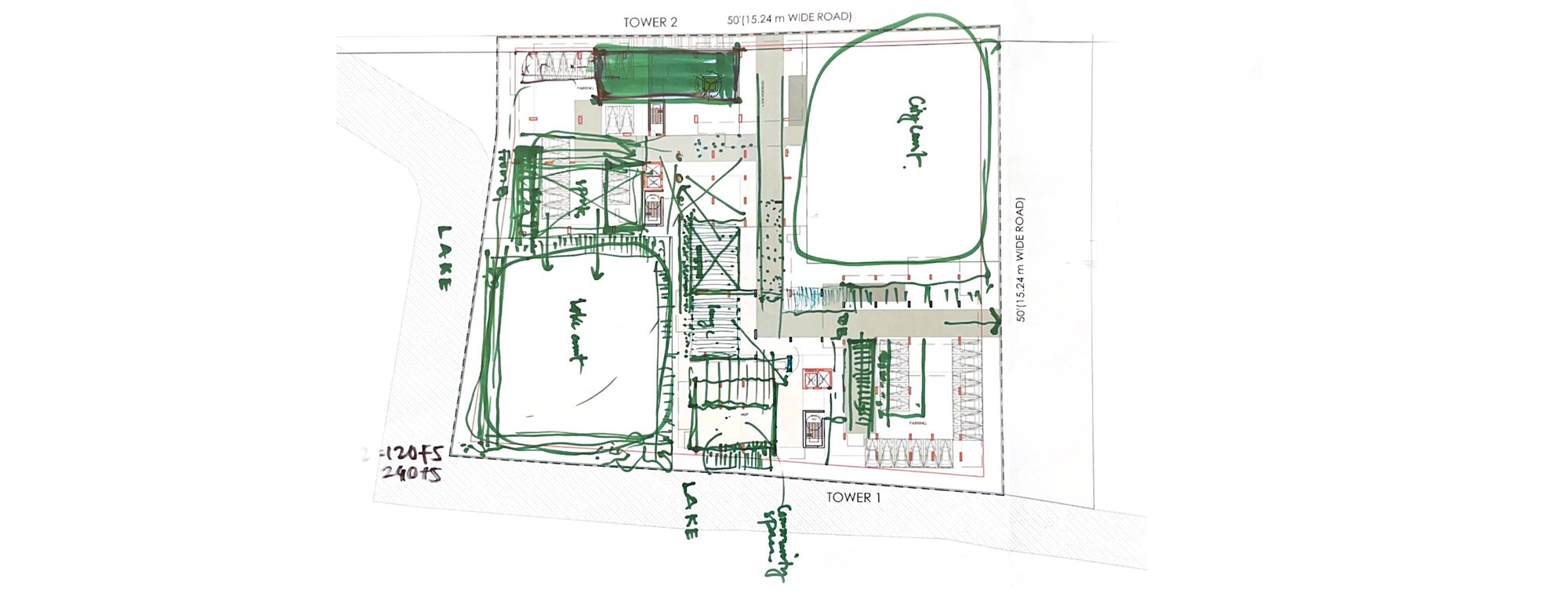
The main inspiration behind the concept of the design is creating a lifestyle rather an conventional apartment. Located in a highly dense city Dhaka, people often need a home ,a place to get peace and a place to breath, and this project aims to fulfill those need. This project consisted with two green yards, which are thoughtfully placed in two corner of the building, connecting them through corridors ,landscape and bringing the ambient of the greeneries to users daily life, several internal courts are placed in multiple levels.

Initiated with full compliance to the Detailed Area Plan (DAP), the project stands as the first-generation Block Development model within its context. The site enjoys a rare condition lake edges on two sides and roads on the remaining two. Leveraging this exceptional potential, the design introduces two primary courtyards the Lakeyard along the lake-facing edge and the Front Yard on the opposite side. These two voids structure the entire spatial strategy, around which the functional mass is organized.

The built form is articulated as two interrelated towers, wrapping around the Lakeyard and Front Yard in a dynamic, puzzle-like arrangement. The planning remains simple in its clarity yet rich in spatial complexity, ensuring efficiency while creating diverse experiential layers. This configuration allows abundant natural light, cross ventilation, and vertically cascading green layers of greenery to permeate the building, forming the foundation of its green-wrapped facade.

To achieve the green wrapped envelope, the exterior incorporates metal perforated grating (welded mesh), selected specifically for Dhaka’s climatic conditions. The towers are connected at selected levels through shared amenity and community spaces, while remaining separated where privacy and security are necessary

Amenity spaces are strategically distributed some near the ground and others elevated ensuring equal and simultaneous access for all residents. The sequence of internal courts, landscape corridors, and urban greens, anchored by the Lakeyard and Front Yard, creates a cohesive living environment far beyond the typical apartment experience.